Online Auctions

Lot 6 - 12 Oakfield Road, Kidderminster, Worcestershire, DY11 6PL

  • Unconditional Online Auction Sale
  • Guide Price* : Auction Guide Price £300,000
  • Bedrooms: 3
  • Bathrooms: 2
  • Reception Rooms: 3

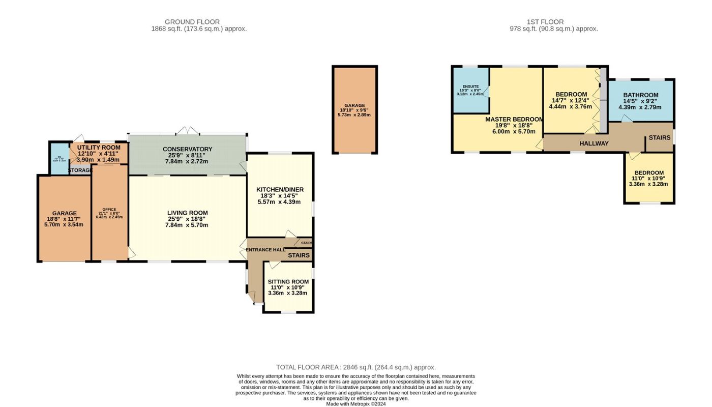
For Sale by Public Auction with our Partner Agents Nock Deighton - The auction will be an online unconditional auction. The property is a substantial detached family home with a superb garden which is enclosed and private. To the front, there is gated driveway parking with two entrances from the road. The property benefits from two garages.

Description

Interested parties will notice from the photographs evidence of damp/water damage. Our client has advised that there had been a burst pipe at the property which has since been fixed but leaving behind the damage caused.

On the ground floor there is an entrance hall, sitting room, dining kitchen, large living room and a conservatory built to a very similar width as the living room. There is also an office/study, utility room and w/c.

Upstairs, there are three bedrooms with the master having an en-suite. The family bathroom services the remaining bedrooms although subject to the necessary permissions and regulations, this space could be reconfigured.

Oakfield Road is a popular residential area and an easily accessible location in the Worcestershire town of Kidderminster, with its wide range of amenities and leisure facilities, such as the Weavers Wharf Shopping Centre, nearby West Midlands Safari Park and a Severn Valley Railway Station.

The property is also located close to the picturesque riverside town of Bewdley. Known as the gateway of the renowned Wyre Forest national nature reserve, Bewdley is a popular tourist destination and is famous for its music scene, selection of independent shops and the Bewdley Bridge.

Kidderminster's railway station is located around 1.5 miles away and offers frequent direct services to Worcester, Wolverhampton and Birmingham with ongoing services to the North and to London. The M5 is approximately 20 minutes drive away.

Council Tax Band

E

* Generally speaking Guide Prices are provided as an indication of each seller's minimum expectation, i.e. 'The Reserve'. They are not necessarily figures which a property will sell for and may change at any time prior to the auction. Virtually every property will be offered subject to a Reserve (a figure below which the Auctioneer cannot sell the property during the auction) which we expect will be set within the Guide Range or no more than 10% above a single figure Guide.

Loading the bidding panel...

Agreement Documents

Additional Documents

Related Documents

Make an Enquiry

Submit an enquiry and someone will be in contact shortly.

 
*  
*  
*
*
*

Share